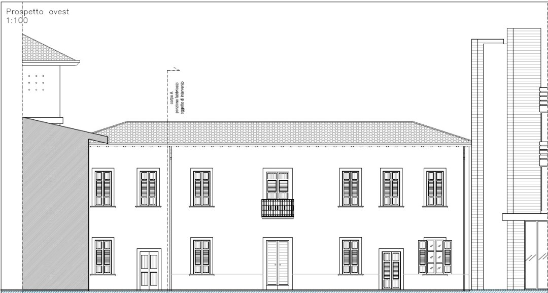
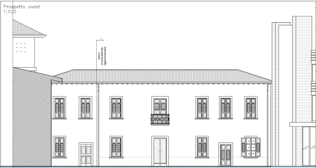
È iniziato il conto alla rovescia per un nuovo tassello del progetto di rinnovamento sociale del Comune di Boltiere. Hanno preso ufficialmente il via i lavori di riqualificazione dell’ex edificio Semperboni, situato in vicolo Benaglio. L’obiettivo? Realizzare tre nuovi appartamenti destinati ad anziani autosufficienti, in un’ottica di inclusione, autonomia e vicinanza ai servizi del territorio.
Il progetto permetterà di completare il Polo Morandi, insieme alla vicina sede dell’ACLI e al Centro Diurno Integrato. I lavori, affidati all’impresa Manenti Battista di San Paolo d’Argon, sono sostenuti dai fondi del Piano Nazionale di Ripresa e Resilienza (PNRR). Il Comune ha ottenuto un finanziamento complessivo di 1,2 milioni di euro, dei quali 910 mila euro saranno destinati alla costruzione e ristrutturazione dell’edificio, mentre la parte restante verrà utilizzata per la gestione degli alloggi e dei servizi annessi. Gli alloggi saranno dotati di tecnologie smart: sensori per segnalare cadute, automazioni domotiche e dispositivi per allertare in caso di emergenze. Un sistema pensato per garantire la massima sicurezza e permettere interventi tempestivi da parte dei caregiver. La fine dei lavori è prevista per l’inizio del 2026.
Grande soddisfazione è stata espressa dal Sindaco Osvaldo Palazzini. Con questo intervento prende il via un altro punto nevralgico del programma elettorale. Un progetto in cui l’amministrazione crede molto, perché migliora concretamente la qualità della vita degli anziani e valorizza il patrimonio immobiliare del Comune.

